防災備蓄倉庫
機能的でエコロジー&エコノミーな防災備蓄倉庫
ストックコンテナによる周辺環境測定ネットワークシステム
ストックコンテナは、災害・緊急時の拠点基地、避難場所としてもご利用いただけます。また、センター拠点となるストックコンテナは、中枢拠点として運用可能です。
各システムの計測データを収集するサーバを設置するストックコンテナ(センター拠点)は、商用電源が寸断された非常時に、PC等を持ち込むことによって、各ストックコンテナ間を結んだネットワークシステムの中枢拠点として運用することができます。
各システムの計測データを収集するサーバを設置するストックコンテナ(センター拠点)は、商用電源が寸断された非常時に、PC等を持ち込むことによって、各ストックコンテナ間を結んだネットワークシステムの中枢拠点として運用することができます。
ソーラーシステムの利点を生かしたインターネット回線から機器選定までトータルに提案します・緊急災害時に商用電源が寸断され、確保できない場合でもストックコンテナの各システムを構成する機器はソーラーシステムの蓄電池から電源供給されるため、システムの停止を防ぐことが可能です。(各システムは停止せず稼働いたします。)
・ソーラーシステムの「災害時でも電源確保ができる」強みを生かしつつ、インターネット回線はモバイル回線で緊急時にも使用可能です。
閲覧対象に応じたカメラソリューションを提案します・カメラは、ストックコンテナ庫内の備蓄品の状況確認を対象とした庫内用だけでなく、庫外の環境(寒冷地、耐衝撃等)に適応したハウジングでカメラを設置することで、コンテナ外部の周辺状況の撮影も可能です。
・撮影対象物、用途に応じた機能、環境に即したカメラ選定をします。 カメラの種類:ボックスカメラ、ドームカメラ、 PTZ(パンチルトズーム)型カメラ
・必要録画期間、画像解像度、フレーム数に応じた録画装置の選定・設置をすることで、リアルタイムのモリタリングだけでなく、過去の映像閲覧ができます。
ストックコンテナの周辺環境状況を、計測、データ蓄積、遠隔監視・遠隔作動ができます・インターネットを用いた測定データの一元管理・閲覧をすることで、各地域に設置されたストックコンテナの内外部の状況を把握し運用することができます。
※インターネット回線は、提供キャリアによって品質担保がされるため、災害時には利用できない場合があります。
カメラの録画品質(解像度、フレームレート)によっては、通信帯域が増大し、想定した品質を確保できない場合があります。
エアコン完備で倉庫内の温度を自動で一定に保ちます
ストックコンテナ内は、断熱材を現場発泡硬質ウレタンフォームで60ミリの厚さに施工し、天井・壁・床の四方全面を
シームレスに覆い、定温倉庫並みに仕上げています。
商用電源不要でエアコンを使用することができ、室内温度は年中エアコンで自動的に調整し、夏季は23℃〜25℃に
保ちます。
5年間保存の備蓄食・水、非常食・水は安全に保存でき、緊急時に即役立てることができます。災害時には、応急救護所や
対策本部としてまた、防災倉庫として使用できます。
シームレスに覆い、定温倉庫並みに仕上げています。
商用電源不要でエアコンを使用することができ、室内温度は年中エアコンで自動的に調整し、夏季は23℃〜25℃に
保ちます。
5年間保存の備蓄食・水、非常食・水は安全に保存でき、緊急時に即役立てることができます。災害時には、応急救護所や
対策本部としてまた、防災倉庫として使用できます。
-
エアコンが完備された室内 -
備蓄食や水などを安全に保存
現場発泡硬質ウレタンフォーム【断熱材】
■断熱性に優れている
ウレタン樹脂で形成された気泡構造により、優れた断熱性能を示します。ノンフロンタイプは気泡内が空気ですので、
断熱性能の経年変化はほとんどありません。
■目地のない断熱層
従来の断熱工法では避けられなかった目地は、熱や水蒸気の侵入を招き、結露・熱ロスの大きな原因となっていましたが、
スプレー工法では目地のない断熱層を実現できます。
■耐水・耐湿性に優れている
独立気泡で構成されているため、吸水・透湿はほとんどありません。
四方面の壁と天井には現場発泡硬質ウレタンフォームを施工しています。スプレー工法や注入工法が可能なため隙間のない
断熱層の実現と、優れた断熱性能により断熱、結露防止に優れた効果を発揮します。
現場発泡硬質ウレタンフォームの施工は、特殊な発泡機械を用いて原液をスプレーガンで対象物にスプレーする方法です。
スプレーと同時に対象面へ強力に接着、瞬時に発泡硬化します。重ねてスプレーすることで厚みの調整も自在です。
また、ノンフロンタイプによりオゾン層の破壊、地球温暖化にも配慮します。
ウレタン樹脂で形成された気泡構造により、優れた断熱性能を示します。ノンフロンタイプは気泡内が空気ですので、
断熱性能の経年変化はほとんどありません。
■目地のない断熱層
従来の断熱工法では避けられなかった目地は、熱や水蒸気の侵入を招き、結露・熱ロスの大きな原因となっていましたが、
スプレー工法では目地のない断熱層を実現できます。
■耐水・耐湿性に優れている
独立気泡で構成されているため、吸水・透湿はほとんどありません。
四方面の壁と天井には現場発泡硬質ウレタンフォームを施工しています。スプレー工法や注入工法が可能なため隙間のない
断熱層の実現と、優れた断熱性能により断熱、結露防止に優れた効果を発揮します。
現場発泡硬質ウレタンフォームの施工は、特殊な発泡機械を用いて原液をスプレーガンで対象物にスプレーする方法です。
スプレーと同時に対象面へ強力に接着、瞬時に発泡硬化します。重ねてスプレーすることで厚みの調整も自在です。
また、ノンフロンタイプによりオゾン層の破壊、地球温暖化にも配慮します。
機能・設備
-
防風・防水・透湿シート
建物外部からの雨水の浸入を防止する防水性と、壁体内に生じる湿気を外部に逃す透湿性を兼ね備えた透湿防水シートをハウス全体の外壁材と断熱材の間に施工しています。
透湿防水シートは外気の進入を防止して、断熱材の断熱性能を保持する役割があります。 -
YKK特注仕様 コンテナ用断熱両開きドア
扉本体内部に断熱材(ウレタンフォーム)を充填し、枠には気密材を用います。
優れた断熱性能で出入口の外気を遮断し、冷気や暖気の侵入や流出を抑えます。
庫内温度の管理に有益で、温度変化に敏感な商品の劣化を防ぎます。
-
ドアを開いた場合、回転灯が点灯しドアが開かれた事を光と音により知らせます。又、メールによりドアが開かれた事を知らせ防犯に対する備えも有しております。LED回転灯
-
庫内に設置された表示器は、タッチパネル式で操作が簡単に行え、ストックコンテナの状態がひと目で確認できます。LEDサインパネル
・庫内の温度、湿度
・バッテリー電圧
・バッテリー残量

壁2口コンセント
携帯電話の充電も一度に30台の利用が可能です。
ハウス仕様(4坪サイズ)
| 外寸法 | W=5,450 × D=2,300 × H=2,753(ソーラーパネル含む) |
| 面積 | 12.54u |
| 重量 | 1,860kg(ソーラーパネル含む) |
| 断熱 | 現場発泡硬質ウレタンフォーム60mm(天井、壁、床 吹付) |
| 建具 | 両開き断熱ドア |
※坪サイズによって変わります。
電気仕様(1坪サイズの仕様になります)
| ソーラーパネル 最大出力 |
2.16kW |
| 1日あたりの 平均発電量予想 |
6kWh前後(夏)3.5kWh前後(冬) |
| 無日照時 使用可能日数 |
5日間(コンテナとして使用時) |
| 環境温度 | -10〜45℃(結露なきこと) |
| AC出力 | 単相100V 30A |
| 出力波形 | 正弦波 |
※坪サイズによって変わります。
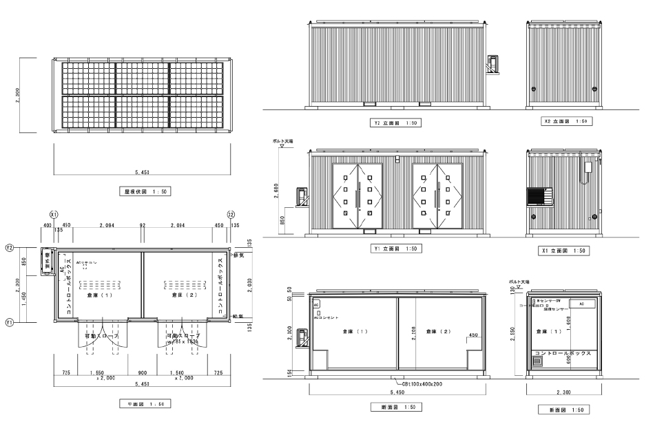
図面
オプション
外壁材
金属サイディングサンプルの中から、用途・お好みにあわせてお選びいただけます。
【金属サイディング】赤サビ・塗膜変褪色10年保証のPanasonicフッ素焼付塗装を使用。
金属サイディングサンプルの中から、用途・お好みにあわせてお選びいただけます。
【金属サイディング】赤サビ・塗膜変褪色10年保証のPanasonicフッ素焼付塗装を使用。
※製品の細かな仕様は変更となる場合があります。


























