ソーラーバイオトイレ『やすらぎ』(快適トイレ)
置くだけ簡単!限りなく無臭に近いバイオトイレ
エコロジー&クリーンなシステムで建設現場の環境をより快適に
■エコ快適トイレ(常流循環式トイレ)は4tユニックで運搬でき、上下水道がなくても設置可能な自己処理型水洗トイレです。※水は河川水利用OK
■電気はソーラーシステムにより蓄電された電気を使用し商用電源の無い場所で設置でき環境に優しいシステムです。
■エコ快適トイレは、周辺に対してトイレ臭を軽減しトイレ室内の匂いがしません。
■汚水を一切出さず洗浄水を再利用します。
■水が常に流れているため「音」が気になりません。
■電気はソーラーシステムにより蓄電された電気を使用し商用電源の無い場所で設置でき環境に優しいシステムです。
■エコ快適トイレは、周辺に対してトイレ臭を軽減しトイレ室内の匂いがしません。
■汚水を一切出さず洗浄水を再利用します。
■水が常に流れているため「音」が気になりません。
トイレキットを標準装備しているので、
設置後すぐにトイレを使用できます!
■ トイレットペーパー
■ ハンドソープ
■ トイレマット
■ 芳香剤
■ トイレ洗剤
■ 使い捨て手袋
■ 掃除用ブラシ
■ 汚物入れ(容器および袋)
■ スリッパ
■ ハンガー
■ 殺虫剤
■ 高性能シーディング剤(汚物分解用微生物粉末)

仕様
| 構造 | 角型鋼管・軽量形鋼 |
| 外寸法 | W=2,300× D=3,200× H=2,800(ソーラーパネル含む) |
| 重量 | 1,800kg(ソーラーパネル含む・水含まず) |
| 壁材 | 外壁:金属サイディング 内壁:プリント合板 腰壁:アイカセラール |
| 屋根 | 充放電管理・カラー鉄板(防露材入) |
| 床 | FRP、長尺エンビシート |
| 断熱 | グラスウール |
| 建具 | フラッシュドア、アルミサッシ、木製引き戸 |
| 設備 | エアコン、鏡付き自動手洗い、LED照明、換気扇、ブレーカー、衣類掛け、サニタリーBOX、 LEDサインパネル、2重ロック、24時間常時水洗、外壁灯および室内灯、目隠し版 |
| 使用回数目安 | 冬季10名程度、夏季15名程度までを目安に1日40〜60回使用可能 ※使用可能回数は気温などの条件に影響を受けます。 |
電気仕様
| ソーラーパネル 最大出力 |
1,44kW |
| 1日あたりの 平均発電量予想 |
4.3kWh前後(夏)/2.5kWh前後(冬) |
| セル種類 | 単結晶シリコン |
| 蓄電池種類 | シールドバッテリー |
| 環境温度 | -10〜45℃ (結露なきこと) |
| AC出力 | 単相100V 7A |
| 出力波形 | 正弦波 |
| 周波数 | 60Hz (周波数変更×) |
| バッテリー充電設備 | 商用・発電機(ガソリン・軽油)1.6kWh以上推奨 |
※坪サイズによって異なります。
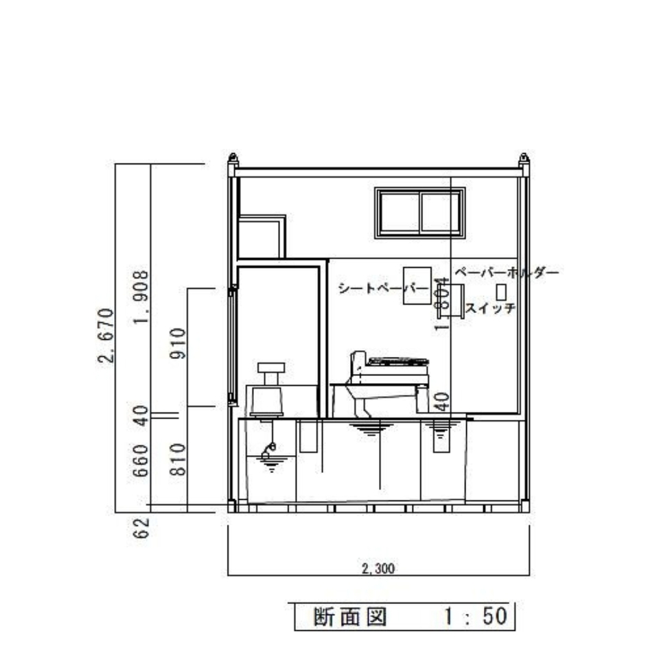
図面
※製品の細かな仕様は変更となる場合がございます。






















